Промышленные системы вентиляции
Проектируем и строим промышленные системы вентиляции и кондиционирования "под ключ" в Екатеринбурге и Свердловской области
Написать нам:
climat-e96@mail.ru
Промышленные системы вентиляции
Системы вентиляции и кондиционирования
Для коммерческих и производственных помещений любой сложности
Помогаем проектным институтам, архитектурным бюро, частным проектировщикам в подборе и предоставлении исходных данных для проектирования





Промышленные системы вентиляции
Написать нам:
climat-e96@mail.ru




Проект
Проектирование вентиляции, проектирование кондиционирования, Составление тех.задания. Согласование

Оборудование
Опишите требуемое оборудование, маркировку и мы поставим оборудование в короткий срок по Екатеринбургу и Свердловской области

Вентиляция
Выполним монтаж согласно ГОСТ и Вашим требованиям

Кондиционирование
Выполним монтаж согласно ГОСТ и Вашим требованиям
Группа компаний Екб Климат работает с 2008 года. Мы занимаемся проектированием, монтажом и обслуживанием систем кондиционирования и вентиляции. На сегодняшний день мы являемся одним из лидеров рынка ОВиВК (отопление, вентиляция и кондиционирование воздуха) в Екатеринбурге, имеем большое количество компаний-партнеров и клиентов в различных сферах бизнеса.
Мы обладаем современным оборудованием и профессиональной командой инженеров и монтажников, которые гарантируют высокое качество работы в кратчайшие сроки.
А также активно участвуем в реализации крупных инженерных проектов, применяем инновационные решения и технологии для повышения эффективности систем кондиционирования и экономии энергоресурсов.

Собственники частной недвижимости
Жилищные комплексы и коттеджные поселки
Государственные заказчики
Образовательные и медицинские учреждения
Проектные организации, институты, монтажные организации
Владельцы и управленцы коммерческой недвижимости
Строительные компании
Подрядные и генподрядные организации
Бизнес центры, офисные помещения, рестораны, магазины, банки, гостиницы, складские помещения
Мы работаем как с российскими, так и с зарубежными поставщиками. Экономия может увеличить риски возникновения дополнительных затрат в будущем. Лучше не снижать качество работ, иначе это может привести к плохому функционированию системы.












Главный специалист по проектированию систем вентиляции



Проектирование
Разработка проекта и внедрение комплекса решений на гражданских и промышленных объектах

Подбор
Подбор основного и дополнительного оборудования, предоставим оптимальную конфигурацию

Монтаж
Выполнение монтажных работ любой сложности: высотных, при повышенной температуре, особых условиях

Поставка
Основное и вспомогательное оборудования (воздуховоды - нержавейка/оцинковка, автоматика, сетевые элементы)

Пусконаладка
Позволяет: установить, насколько система соответствует данным проекта; провести оценку качества монтажных работ

Обслуживание
Проводим техническое гарантийное и постгарантийное обслуживание вентиляции
Подберем для вас оптимальное решение по параметрам помещения и задачам в рамках или даже ниже установленого бюджета.
Приточно вытяжная система в офисе.
Вытяжка управляется с контроллера. Включение, выключение по таймеру, в рабочие дни.
Приток осуществляется с Бризеров.
Бризер - компактная приточная установка. Высокая степень очистки, 3 фильтра, плюс встроена ультрафиолетовая лампа. Также есть нагрев.
Преимущества при переезде снимается, и устанавливается в новом посещении
Установка кондиционеров, Компьютерный клуб. Московская 249
Площадь помещения 90м2, плюс тепло выделяемое компьютерами и людьми. Разделено на 3 комнаты. Приняли решения поставить 3 отдельных кондиционера, что бы управлять температурой раздельно.
Наружные блоки установлены в паркинге, расстояние между блоками 30 метров.
г.Ирбит Айти Куб
Проектирование, подбор оборудования, монтаж
За Люля, Кузнецова 2
Проектирование, подбор оборудования, монтаж
Охлаждение серверной
Проектирование, подбор оборудования, монтаж

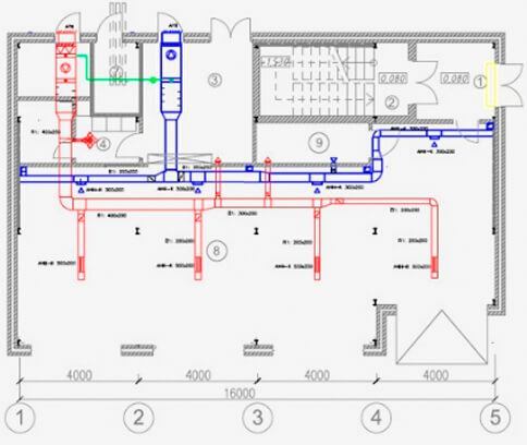
Пример сметы и проекта вентиляции автосервиса
Смета:
| 1. | Вент. установка | 2шт. | 148 000 |
| 2. | Воздуховоды | 60 м. | 37 000 |
| 3. | Фасонные иделия | 1 к-т | 3 000 |
| 4. | Заслонка с приводом | 2 шт. | 28 000 |
| 5. | Решетка уличная | 2 шт. | 3 200 |
| 6. | Диффузор | 14 шт. | 3 500 |
| 7. | Монтажный к-т (метизы) | 14 шт. | 3 500 |
| 8. | Алмазное бурение стен | 4 шт. | 18 000 |
| 9. | Проектирование | - | 60 000 |
| 10. | Доставка оборудования | - | 5 000 |
| 11. | Монтажные работы | - | 54 000 |
ИТОГО: 363 200 ₽
Есть ли гарантия на оборудование?
Гарантия на оборудование минимум 1 год или выше в зависимости от гарантии производителя. Также мы можем рассчитать срок постгарантийного обслуживания для особо требовательных объектов
ВЫ выполните монтаж моего оборудования?
Монтаж выполняется квалифицированными инженерами и только сертифицированного оборудования, которое закупаем мы. Иначе - не даем гарантию
КАК выполняется оплата услуг?
Оплата по договору любым удобным способом
вы производите ремонт вентиляционного оборудования?
Ремонт уже установленного оборудования может производиться только в рамках долгосрочного контракта на техническую поддержку
Фиксируем стоимость
в договоре и не поднимаем ее в процессе работ
Бюджет
Уложимся в Ваш бюджет по смете на реализуемый проект
Переплата
Вы не оплачиваете, поставки оборудования по дилерским ценам напрямую с заводов производителей
Расходы
Подберем оптимальное решение для уменьшения расходов на электроэнергию
Гарантия
Гарантия 3 года на оборудование и монтаж по договору
Микроклимат
Достигнем оптимального микроклимата в помещении
Настройка
Монтаж и настройку систем осуществляют сертифицированные инженеры с опытом работы более 7 лет
Обслуживание
Сервисное обслуживание в течение всего срока эксплуатации
НЕ ОПРЕДЕЛИЛИСЬ?
Отправьте свое предложение, мы его рассмотрим и свяжемся с Вами
Оставьте заявку на при необходимости прикрепите файл (проекта, сметы, поручения)